Shops and offices
Lakás Kép
Available at
BHI23
Size (m²)
115.96 m²
Number of rooms
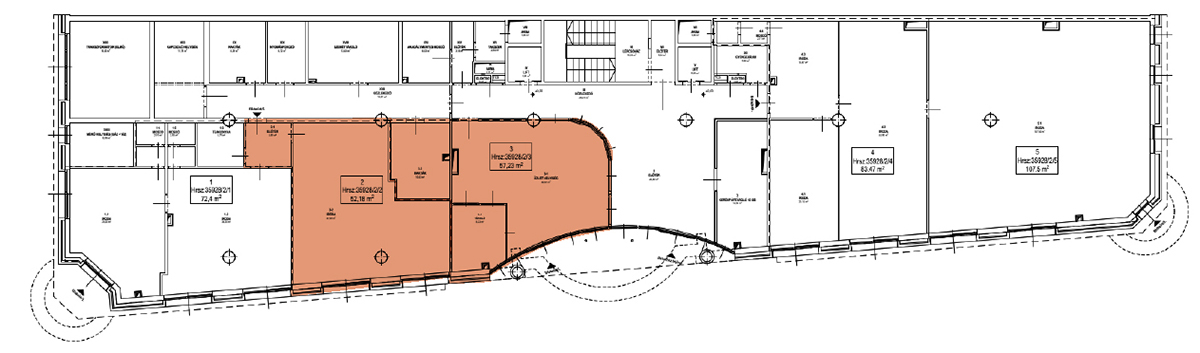
Floors
Ground floor

Scoping:

Residential cooling: No

Bathroom and toilet: -


128 780 000 Ft

Floor plan

Alaprajz

Other information

Downloadable documents

View floor plan
View a level drawing

Contact us

Contact

Address

1086, Szeszgyár utca 4.