Shops and offices
Lakás Kép
Available at
BHI12
Size (m²)
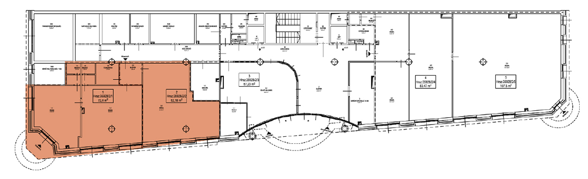
129.24 m²
Number of rooms
Floors
Ground floor

Scoping:

Residential cooling: Yes

Bathroom and toilet: -


144 980 000 Ft

Floor plan

Alaprajz

Other information

Downloadable documents

View floor plan
View a level drawing

Contact us

Contact

Address

1086, Szeszgyár utca 4.