

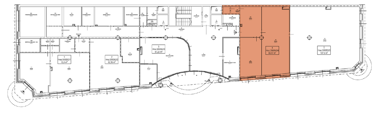
BHI04
87.56 m²
1
Ground floor
Scoping: South
Residential cooling: Yes
Bathroom and toilet: Together
Other information
- Room: 84.72 m²
- Area under partition wall: 0.20 m²
Downloadable documents
View floor planView a level drawing


Scoping: South
Residential cooling: Yes
Bathroom and toilet: Together