

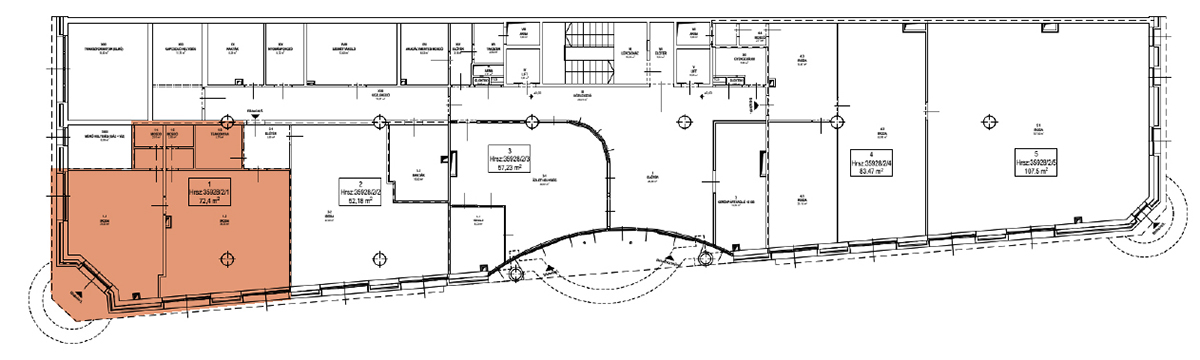
BHI01
72.77 m²
1
Ground floor
Scoping: South West
Residential cooling: Yes
Bathroom and toilet: Together
Other information
- Area under partition wall: 1.23 m²
- Room: 65.93 m²
Downloadable documents
View floor planView a level drawing


Scoping: South West
Residential cooling: Yes
Bathroom and toilet: Together